
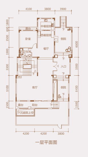
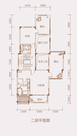
bv伟德源自英国始于1946·御湾雅墅
项目地址
惠州市惠城区规划东部新城区域
咨询电话
0752-8810888
项目实景图、效果图展示
{
项目位置
扫描二维码 | 了解更多
{
关注添加微信公众号
关注添加微信公众号


































陕公网安备 61019002002366号